Rehabilitació de la Casa de la Premsa

Rehabilitació de la Casa de la Premsa

Barcelona

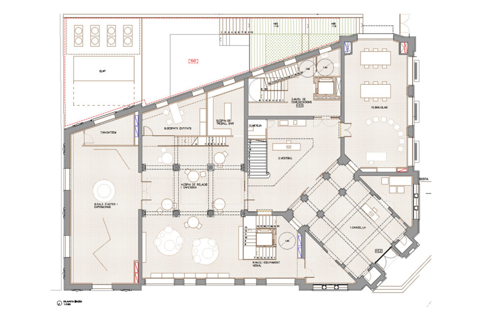
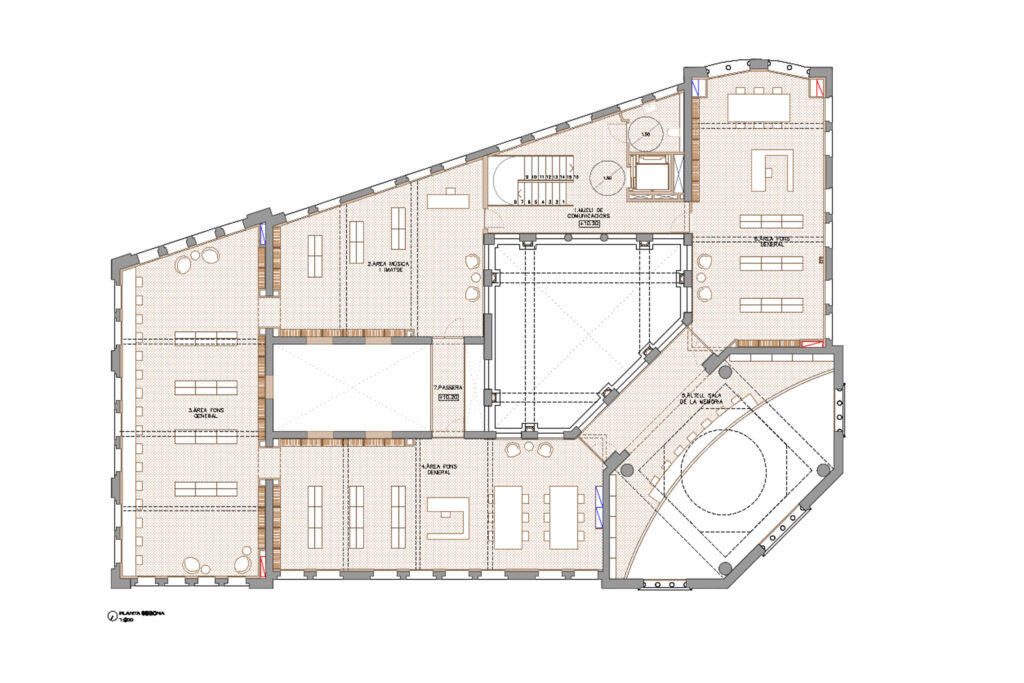
La Casa de la premsa es va construir amb projecte i direcció d’obra de Pere Domènech i Roura per a l’Exposició Internacional de Barcelona de 1929, amb la funció de donar suport als periodistes. Va ser el centre neuràlgic pels periodistes on se les proporcionava servei telefònic amb una sala amb 10 cabines, serveis de restauració i fins i tot en alguns casos d’allotjament en la planta sota coberta.

Acabada l’exposició l’edifici es va utilitzar durant un temps per fer concerts i recepcions de petita escala. La Guàrdia Urbana ocupa l’edifici a partir de 1934 fins a la dècada dels setanta quan es trasllada al solar del costat a la seva seu actual. La casa de la premsa resta sense activitat fins a març de 2017 quan l’associació veïnal anomenada Comissió per a la Recuperació de la Casa de la Premsa comença a utilitzar dues sales de la planta baixa.

Aquesta associació participa activament amb els responsables del districte de Sants i els redactors del projecte en l’elaboració del programa d’usos que havia d’allotjar la rehabilitació de l’edifici. Un programa que compaginava l’equipament veïnal amb el de biblioteca de Poble Sec i amb el que es va desenvolupar un avantprojecte que per diverses vicissituds ha restat aturat.

L’actitud de l’avantprojecte ha estat la de recuperar l’edifici, els seus espais i la seva materialitat integrant els nous usos i estàndards normatius sense malmetre la qualitat i el valor patrimonial d’aquest.

Data projecte

2019

Data obra

Client

BIMSA

Superfície

2.274 m2

Equip de disseny

Txema onzain, Joan Nogué, Javier Vilaregut, Ferran Iglesias

Col·laboradors

Bernuz-Fernández SPL, Matters, PGI engineering, AT3

Fotografia 

Jose Masterton

Scroll al inicio