154 habitatges dotacionals i equipaments al carrer Navas de Tolosa, IMHAB

154 habitatges dotacionals i equipaments
al C Navas de Tolosa

Barcelona

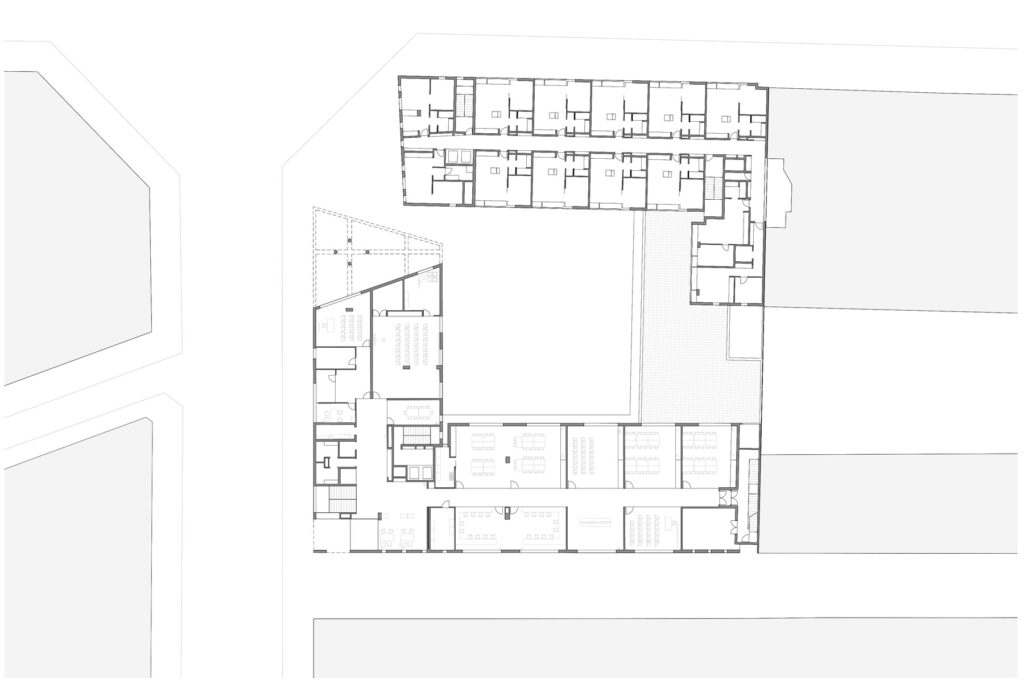
El nucli del programa del projecte és l’habitatge dotacional: 78 habitatges per a gent  jove i  76 habitatges per a gent gran. En planta baixa i altell es desenvolupa un programa d’escola bressol i un centre cívic pel barri de Sant Andreu. Es construeix també un aparcament en dues plantes soterrani que comptarà amb 233 places d’aparcament.
 
L’ordenació del conjunt en dos edificis que flanquegen l’entrada al pati d’illa, ens ve suggerida per dos aspectes primordials del programa: el funcionament separat i autònom dels habitatges per a gent jove, dels habitatges per a gent gran i el caràcter públic de l’espai lliure interior d’illa.
Obrim el pati al carrer desmaterialitzant el xamfrà –única façana que en l’eixample permet visions frontals- no només per la dimensió similar dels dos programes d’habitatge sinó també perquè ens permet ressaltar la importància que pren el pati en el funcionament dels edificis: lloc comú, espai de trobada de les quatre activitats.
 
Quant a la disposició volumètrica, els dos edificis es modelen per adaptar-se a les diferents circumstàncies que es van trobant: es guanya fondària edificable per adaptar-se a la mitgera veïna, es reconeix el passatge amb la reculada de les quatre plantes superiors de la façana del carrer Navas que serà una planta més alta que la façana d’Indústria. Al xamfrà, es treballa la relació tensa entre les dues façanes que s’enfronten fins a crear un cert equilibri ajudat pel buidatge de dues plantes de l’edifici de gent gran que obra les visuals al pati.
 
En el disseny de la cèl·lula d’habitatge optem per una crugia de 7 m d’amplària, per tal de donar qualitat vital –llum i ventilació- a uns habitatges petits que gaudeixen d’una única façana d’orientació i que la seva ventilació transversal ha de ser mecànica. Alguns aspectes de detall han proporcionat major habitabilitat als habitatges: alliberar la barra de la cuina de la nevera amb el moble exempt que servirà per als estris de neteja, el petit pas al bany que proporcionarà espai d’emmagatzematge o la necessària terrassa que es converteix en penjador de roba integrat en la façana.
 
El tractament de les façanes amb panell prefabricat pesat de color blanquinós va permetre treballar amb el gran forat que retalla el parament, amb les gelosies que es llegeixen com incisions en el pla llis de la façana aconseguint una lectura d’escala decididament urbana d’una façana amb programa domèstic.

Data projecte

2011

Data obra

2012-2013

Client

IMHAB

Superfície

682,4 m2

PEM

1.976.141 €

Equip de disseny

Txema Onzain, Joan Nogué, Javier Vilaregut

Col·laboradors

Bis arqutiectes, Font i Armengol

Fotografia 

Jordi Surroca

Scroll al inicio