CAP Raval Nord

CAP Raval Nord

Barcelona

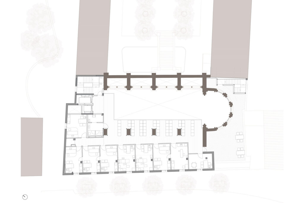
La manca de solars per equipaments públics al Raval de Barcelona unida a la urgent necessitat d’un nou centre d’assistència primària al barri explica la singularitat de la proposta: construir un CAP a l’Església de la Misericòrdia ampliant-la sobre el solar estret, de 200m², entre església i carrer de Montalegre. El projecte implicarà una sèrie de desafiaments, entre ells la disposició del programa, en el grau de conservació de l’edifici patrimonial i la seva relació amb la nova arquitectura, en la dificultat constructiva i estructural del nou conjunt així com en el vessant paisatgístic. Aquesta última serà la de més calat, la que definirà el projecte: se soluciona l’impacte negatiu d’un volum excessivament gran previst per la promoció, reduint-lo considerablement en transportar part d’aquest a una planta soterrani ajudada per diversos patis anglesos.

Com es mostra als esquemes i a la fotografia de l’estat actual vist des de la plaça dels Àngels i a la imatge de la proposta, el nou edifici redueix el volum previst pel planejament, modulant la seva presència al carrer Montalegre. La dimensió menuda de l’Escola Vedruna invita a la contenció i la presència endarrerida de l’església propicia el trencament en diferents plans del volum previst per deixar espai a la percepció del gruix de la ciutat, als suggeriments dels segons plans, a la curiositat dels darreres. La proposta participa de la rica complexitat del paisatge de Ciutat Vella, un espai divers en formes, edats, textures i colors. Des de la plaça dels Àngels mostrarà el seu compromís: l’edifici deixarà que el lloc el modeli, reconeixent als veïns, creixent en alçada per reduir la visió del tester de la Facultat de Geografia i Història, reduint-se per deixar respirar a la subtil façana de l’Escola Vedruna.

Se soluciona la juxtaposició de les noves estructures amb les existents, mantenint els trets definidors de la nau: les voltes a mocador i la seva coberta, l’absis i les parets on descansen els arcs. La racionalitat econòmica i constructiva implicarà la continuïtat d’aquests trets principals en tota la seva integritat mantenint les seves funcions en el nou conjunt.

Data projecte

2021-2024

Data obra

2025-2027

Client

Servei Català de la Salut, Infraestructures.cat

Superfície

2.840,9 m2

PEM

7.618.928 €

Equip de disseny

Txema Onzain, Joan Nogué, Javier Vilaregut, Ferran Iglesias, André Salazar

Col·laboradors

Bernuz Fernandez arquitectes, Font i Armengol, Jordi Chorén, Societat Orgànica

Fotografia 

Jose Masterton

Scroll al inicio