54 habitatges socials a Sant Andreu de la Barca, IMPSOL

54 habitatges socials
al Pg del Parlament de Catalunya

Sant Andreu de la Barca

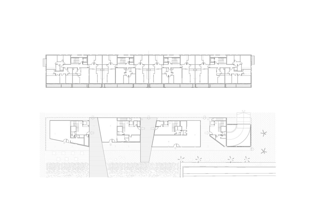
El planejament ubicava l’edifici en una situació prominent davant de la trinxera del ferrocarril, proposava un volum de 84 m de llarg i quatre plantes pis (més una cinquena reculada) ocupant l’espai del passeig, el qual restava tallat pel nou edifici. El cobriment de les vies semblava justificar l’ordenació: el passeig desembocaria en el parc situat a l’altre costat de les vies del tren. El planejament també requeria que la planta baixa sigues porosa, per poder garantir els pas dels vianants a través de l’edifici.
 
La proposta del concurs endarrereix la planta àtic i en la mesura del possible la planta baixa, per formalitzar un volum contundent que resta suspès sobre els suports de la planta baixa. Respon al fet d’estar al mig de tot mostrant un edifici ben abillat, amb façanes molt treballades formalment perquè estiguin a l’altura de la seva omnipresència en aquest indret de l’eixample de St. Andreu: Es dibuixa un esquema formal de grans trets, basats en el contrast del maó vist de color marró fosc amb els paraments arrebossats blancs. Els grans trets s’acompanyen d’una sèrie de detalls, de matisos de jocs visuals, que s’aprecien amb una segona mirada més atenta.   
 
La façana sud es protegeix del sol amb terrasses volades organitzades en un cos independent sobreposat al tancament de maó. Sobre aquest fons d’ombra densa, la pauta blanca del primer pla adquireix complexitat, gràcies al diferent tractament de les costelles que separen els habitatges i al lleu moviment, amb posicions canviants de les lames de protecció dels estenedors. Una façana que vibrarà amb una certa aleatorietat, ocultant a l’exterior l’organització reglada dels habitatges.
 
El tall vertical de la façana testera indicarà amb claredat la idea del cos de les terrasses com a façana física i formalment independent. Les façanes laterals, en canvi, estan unides compositivament amb la façana nord, els dos materials de façana giren a diferents alçades creant un joc de tensions que arrossega fins i tot a la col·locació inversa dels balcons en cada tester.

Data projecte

2020

Data obra

2009

Client

BIMSA

Superfície

7.870,00 m2

PEM

4.583.101,00

Equip de disseny

Joan Nogué, Txema Onzain, Mar Balcells, Esther Ferrer, Marina Berbel, Marta Cristiano, Joan Puig

Col·laboradors

Avant Enginyers, Bernuz-Fernández SLP

Fotografia 

Marcela Grassi

Scroll al inicio