Reforma i adequació Ceip Mare de Deu de la Candela

Reforma i adequació CEIP La Candela

Valls

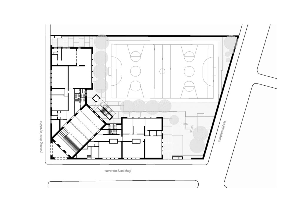
L’escola se situa en la part baixa de la població en una zona d’equipaments al costat de les vies del tren, de la carretera C-55 i d’una zona industrial que tanca les vistes del riu Llobregat. El solar està a una cota inferior del viari, i dels edificis més propers. Un edifici de dues plantes s’hauria situat més airosament en aquest indret. Com aquesta possibilitat estava fora de L’Escola Mare de Déu de la Candela es va construir als anys XX amb un programa que responia als criteris de l’època amb dos edificis bessons, l’escola de nenes i la de nens, servits per un cos central que contenia els espais oberts i representatius: el vestíbul i el teatre en planta primera.

La formalització del conjunt també és deutora del seu temps tant en la formalització de façanes i cobertes com en la disposició del conjunt amb una estricta simetria que implicarà situar l’entrada centralment, per l’eix simetria, per la bisectriu de la cantonada. En el moment de la rehabilitació l’edifici havia sofert moltes intervencions i únicament algunes aules i sales del cos central mantenien la seva singularitat. Es va reinterpretar la disposició de les peces que havien perdut el seu ús a partir d’alguns plànols originals i fotografies de l’època.

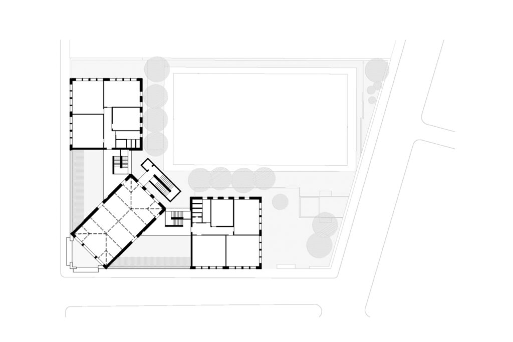
Es manté l’accés per la cantonada aixamfranada, disposant un gran espai de rebuda, sobre el qual es recupera en planta primera el teatre-sala polivalent i en planta segona la biblioteca.
Un nou nucli de comunicacions connectarà aquestes tres peces principals facilitant l’accés fora de l’horari escolar, solucionant alhora l’evacuació en cas d’incendi. Es formalitza el nucli amb una façana lleugera, perforada, que proporciona un pla neutre que ajuda a ressaltar els dos volums bessons ara pintats de blanc.     

Data projecte

2005

Data obra

2008 – 2009

Client

Departament d’Educació de la Generalitat de Catalunya. GISA

Superfície

2.769 m2

PEM

2.861.923

Equip de disseny

Joan Nogué, Txema Onzain, Topo Abe

Col·laboradors

IMANAGEST, BIS arquitectes

Fotografia 

Nogue-Onzain

Scroll al inicio