Casa d’Oració per les Germanes Mercedàries

Casa d’Oració per les Germanes Mercedàries

Eguino

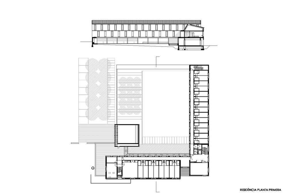
A l’aldea d’Eguino, a la frontera entre Àlaba i Navarra, les Germanes Mercedàries promouen un centre dedicat a l’estudi, l’oració i la meditació. El centre havia de comptar amb dos àmbits: un edifici per a grups on acollir col·lectius que desenvolupen activitats variades (des d’un curs d’immersió en euskera a un retir zen) i al seu costat un conjunt d’edificis, la veritable Casa d’Oració, on habita una petita congregació de monges que acull visitants i petits grups que venen a fer trobades o a retirar-se uns dies.

Els dos programes es mostren clarament en les seves arquitectures. El primer, de cobertes planes i façanes de formigó, un edifici concentrat, auster i fàcil de mantenir. En la casa d’oració, en canvi, els elements simbòlics són part del programa de necessitats. Per tant, recordar el jardí tancat de la tradició mística ens ajuda a pensar en un lloc de trobada, oració i meditació. Estenem l’arquitectura per definir un jardí interior al voltant del qual, i en diferents nivells, es produeixen els espais de relació i recorregut. Allà on el programa ens manca per tancar el jardí, l’ampliem mitjançant una paret de formigó que recorre i lliga, de forma simbòlica, tota la planta baixa del conjunt.

Dins aquest jardí tancat, la presència de la capella-oratori, amb la rotunditat de la seva volumetria en formigó, pren importància davant del teló de fons de les façanes d’obra vista en forma de gelosia. Enfront de l’oratori, el jardí tancat crea una excepció, fent desaparèixer el mur per poder obrir-se panoràmicament a l’est, al prat i al paisatge.
El resultat final de la Casa d’Oració oculta un sistema estructural mixt de pilars i jàsseres de formigó in situ sobre les quals descansen parets de càrrega i prelloses de formigó. Es va adoptar aquesta solució per adequar l’estructura a l’ús de cada planta: a les plantes baixes es necessitaven espais oberts i, en canvi, a les plantes pis estaven ocupades quasi exclusivament per habitacions. Les parets de càrrega van permetre fer unes plantes d’habitacions netes, sense interrupcions estructurals. Per altra part, l’existència de dues pedreres, una fàbrica de formigó i una de prefabricats a només cinc quilòmetres del solar va facilitar l’adopció d’aquest sistema.

Data projecte

1993-1996

Data d’obra

1996

Client

Hermanas Mercedarias

Superfície

3.600 m2

Pressupost

340.000.000 pts.

Equip de disseny

Txema Onzain, Joan Nogué, Jordi Roig, Félix López, Morten Lomholdt

Col·laboradors

Robert Brufau i Associats / Instal·lacions Arquitectòniques

Fotografia 

Eduardo Armentia / Carolina García

Scroll al inicio