CEIP Cavaller Arnau a Riudoms

CEIP Cavaller Arnau

Riudoms

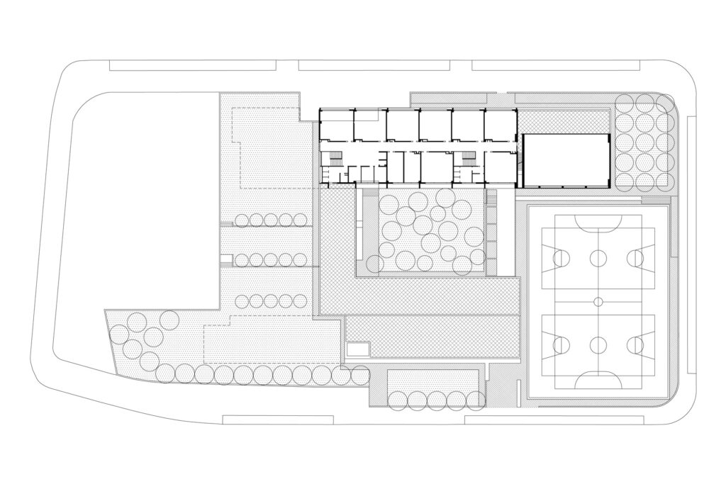
Els dos aspectes que expliquen l’organització del conjunt seran el programa d’escola d’una línia, amb la previsió de l’espai per ampliar-se a dues, i la forma i orientació del solar: un rectangle amb les façanes llargues orientades a nord-sud. Se situa en la part central del solar el gruix del programa al voltant d’un pati interior, deixant a un costat l’espai de reserva per a l’ampliació i a l’altre costat la pista amb el gimnàs.

La creació d’un pati de jocs arbrat que sigui el nucli, el centre de l’escola comptarà amb els avantatges ja coneguts de la separació de les dues escoles, però amb bona connexió per l’ala d’administració. En aquest cas, la creació del pati central tenia aquí un major interès per raons climàtiques, un espai més fresc pel pati de primària, i també permetia abstraure’s d’un entorn poc encoratjador: un eixample d’habitatge unifamiliar a mig fer. La relació directa del pati amb la pista també és un dels atractius de l’esquema.

La promoció es va desenvolupar amb un concurs de projecte i obra on s’havia de construir l’edifici prèviament en taller preparat per muntar-lo a l’obra com ja havíem fet en altres ocasions. Finalment, però, es va construir in situ industrialitzant únicament les façanes amb panell de formigó pesat.

El llindar de pressupost en aquests casos implica la utilització de panell gris pintat. Sobre un fons blanc, resseguint la modulació dels panells, es va accentuar amb un color fosc aspectes plàstics que se’ns suggerien del dibuix dels panells i forats: talls, tensions entre forats, emmarcaments, etc. Un altre element que acaba d’assentar i donar personalitat al conjunt seran les costelles que s’adossen a les façanes sud i nord de primària que amb el tractament del color integraran posant en un segon pla de visió les lames de protecció solar.

Data projecte

2013

Data obra

Client

GISA i Departament d’Educació de la Generalitat de Catalunya

Superfície

PEM

Equip de disseny

Joan Nogué, Txema Onzain, Félix López

Col·laboradors

BIS Arquitectes / Font i Armengol

Fotografia 

Marcela Grassi

Scroll al inicio